泊頭市香蕉视频在线观看免费泵業有限公司

大香蕉一级片找香蕉视频在线观看免费泵業谘詢電話:13931762407
熱門點擊:
   
公司動態 news
  KCB大香蕉一级片結構特點
KCB大香蕉一级片有齒輪,軸,泵體,安全閥,軸端密封(特殊要求,可選用磁力驅動,零泄漏結構)等組成.齒輪經熱處理有較高的硬度和強度,與軸一同安裝在可更換的軸套內運轉.泵內全部零件的潤滑均在泵.....
油泵產品列表  
大香蕉一级片
91香蕉视频APP下载安装
久久久香蕉视频
保溫瀝青泵
單螺杆泵
雙螺杆泵
三螺杆泵
自吸式離心泵
渣漿泵
高粘度泵
化工泵
船用泵
磁力泵
渣油泵係列
 
 
產品中心 當前位置 > 香蕉视频在线观看免费泵業 > 產品展示 > 大香蕉一级片 >
 
  • YCB不鏽鋼圓弧大香蕉一级片
  • -詳細參數

YCB不鏽鋼圓弧大香蕉一级片適用於輸送不含固體顆粒和纖維,無腐蝕性,溫度不高於200℃,粘度為5×10-6~1.5×10-3m2/s (5-1500cSt)的潤滑油或性質類似潤滑油的其他液體;如用於石油,化工,冶金,礦山,電站等行業油類介質的轉輸,增壓,燃油噴射等以及大型機械設備中稀油循環中,在各類機械設備中均可做潤滑泵使用.在輸油係統中可用作傳輸,增壓泵;在燃油係統中可用作輸送,加壓,噴射的燃油泵;在一切工業領域中,均可作潤滑油泵用,YCB係列不鏽鋼大香蕉一级片適用於輸送不含固體顆粒和纖維,有腐蝕性;同時YCB係列大香蕉一级片可以采用銅齒輪配合機械密封裝配使用,主要用於有揮發性易燃,易爆場合輸送汽油,柴油,甲苯等類似的易燃介質.圓弧大香蕉一级片采用雙圓弧加正弦曲線複合成齒形,淘汰漸開線齒輪輸送泵.圓弧大香蕉一级片齒輪在兩齧合齒廓間為一點連續接觸,不會產生困油現象,解決了漸開線大香蕉一级片(KCB係列屬於漸開線大香蕉一级片)因困油現象導致泵的振動,噪聲,軸承負載增大等現象.因此圓弧大香蕉一级片效率高,噪聲低,並具有良好的節能效果.
YCB不鏽鋼圓弧大香蕉一级片主要有齒輪,軸,泵體,泵蓋,軸承套,軸端密封等組成.齒輪采用雙圓弧正弦曲線齒形製造.它與漸開線齒輪相比突出的優點是齒輪齧合過程中齒廓麵沒有相對滑動,所以齒麵無磨損,運轉平穩,無因液現象,噪音低,壽命長,效率高.該泵擺脫了傳統設計的束縛,使得圓弧大香蕉一级片在設計,生產和使用上進入了一個新的領域.
YCB不鏽鋼圓弧大香蕉一级片設有安全閥作為超載保護,安全閥全回流壓力為泵額定排出壓力的1.5倍.也可在允許排出壓力範圍內根據實際需要另行調整.但注意本安全閥不能作減壓閥長期工作,需要時可在管路上另行安裝.
泵軸端密封設計為兩種形式,一種為機械密封,一種是填料密封,可根據具體使用情況和用戶要求確定.從主軸外伸端向泵看,為順時針旋轉.

YCB不鏽鋼圓弧大香蕉一级片使用時應注意的事項
(1)拆卸和組裝、按產品總裝配圖進行。
(2)進出管路不應急劇彎轉、以防堵塞。
(3)掌握運轉周期更換軸承、以防事故。
(4)停泵時應用清水衝洗放淨、以防冬季凍裂。
(5)應調整在該泵的技術範圍內使用、以達經濟耐用。
(6)為防止頂壞軸承架、在按裝電動機時、要預先測量泵聯軸。

YCB不鏽鋼圓弧大香蕉一级片裝配前準備工作
裝配前將將全部零件洗淨擦幹,所有油道要保障清潔通暢,用適當方法去除零件上的毛刺,消除劃傷,磕碰等造成的損傷。
裝配程序
1、將齧合良好的主、從動齒輪兩軸裝入左側(非輸出軸側)端蓋的軸承中,裝上泵體,裝複時應按拆卸時所作記號對應裝入,切不可裝反。
2、裝配密封件,其位置要正確,鬆緊合適。
3、對準定位銷釘與定位孔後,裝右側端蓋,旋緊螺栓,應一邊轉動主動軸一邊擰緊,並對稱擰緊,以保障端麵間隙均勻一致。
注意:泵蓋緊固螺栓應交替均勻擰緊,內六角螺栓頭部不得凸出泵蓋外端表麵。
4、裝複聯軸器,將電動機裝好,對好聯軸器,調整同軸度,保障轉動靈活。
YCB不鏽鋼圓弧大香蕉一级片性能參數表

型號

流量
Q
轉速
n
r/min
排出壓力
p
Mpa
必需汽
蝕餘量
r
m
效率
η
%
電動機
m3/h頻率
Hz
功率KW
型號
YCB0.6-0.60.69100.65.532500.75Y90S-6
1.01390500.75Y80L2-4
0.71130600.75Y90S-6
1.21710600.75Y80L2-4
YCB0.6-1.60.69101.67.070501.1Y90L-6
1.01400501.5Y90L-4
0.71130601.1Y90L-6
1.21710601.1Y90S-4
YCB1.6-0.61.69100.65.542500.75Y90S-6
2.51400501.1Y90S-4
1.91130601.1Y90L-6
3.01710601.5Y90L-4
YCB1.6-1.61.69401.67.071502.2Y112M-6
2.51440504Y112M-4
1.91150602.2Y112M-6
3.01750604Y112M-4
YCB3.3-0.63.39400.65.060501.5Y100L-6
5.01420502.2Y100L1-4
4.01150601.5Y100L-6
6.01730602.2Y100L1-4
YCB3.3-1.63.39601.67.072505.5Y132M2-6
5.01440507.5Y132M-4
4.01170604Y132M1-6
6.01750607.5Y132M-4
YCB4-0.64.09400.65.060501.5Y100L-6
6.01420502.2Y100L1-4
4.81150602.2Y112M-6
7.21730603Y100L2-4
YCB4-1.64.09601.67.072505.5Y132M2-6
6.01440507.5Y132M-4
4.81170605.5Y132M-6
7.21750607.5Y132M-4
YCB8-0.68.09600.65.061503Y132S-6
12.01440505.5Y132S-4
9.61170604Y132M1-6
14.41750605.5Y132S-4
YCB8-1.68.09701.67.0755011Y160L-6
12.014605015Y160L-4
9.611706011Y160L-6
14.417606015Y160L-4
YCB10-0.610.09600.65.062504Y132M1-6
15.01440505.5Y132S-4
12.01170605.5Y132M2-6
18.01750607.5Y132M-4
YCB10-1.610.09701.67.0765011Y160L-6
15.014705015Y160L-4
12.011706011Y160L-6
18.017706018.5Y160L-4
YCB20-0.620.09700.65.068507.5Y160M-6
24.01170607.5Y160M-6
YCB25-0.625.09700.65.5695011Y160L-6
30.011706011Y160L-6
YCB30-0.630.09700.65.5705011Y160L-6
36.011706011Y160L-6
YCB40-0.640.09700.65.5725015Y180L-6
48.011806015Y180L-6
YCB50-0.650.09700.65.5725022Y200L2-6
60.011806022Y200L2-6


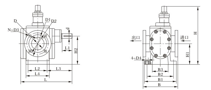
YCB不鏽鋼圓弧大香蕉一级片外型、安裝尺寸
YCB不鏽鋼圓弧大香蕉一级片外型、安裝尺寸
型號LL1L2L3L4BB1B2B3HH1H2DD1D2N-D34-D4d
YCB0.61803045107.5661259170351878092φ25φ100φ754-M104-φ9φ12
YCB1.62083255118.580150115905020879.795φ32φ120φ904-φ144-φ11φ14
YCB3.3247.63570132.85981801481207525887.6110φ40φ130φ1004-φ144-φ13φ18
YCB4260.63580134.81081801481207526392.6115φ50φ140φ1104-φ144-φ13φ18
YCB831345100158.513822017814090361105135φ65φ160

φ130

4-φ144-φ13φ24
YCB1033045100168.513822017814090360105135φ65φ160φ1304-φ144-φ13φ24
YCB2040055135201182260226180118436.5130.8170φ80φ190φ1504-φ184-φ18φ32
YCB2543055135216182260226180118436.5130.8170φ100φ210φ1704-φ184-φ18φ32
YCB3045960150236200275231190126461141185φ100φ210φ1704-φ184-φ18φ35
YCB4050070175251.5225300260210140509157205φ125φ240φ2004-φ184-φ18φ40
YCB5049370175246.5225300260210140509157205φ125φ240φ2004-φ184-φ18φ40

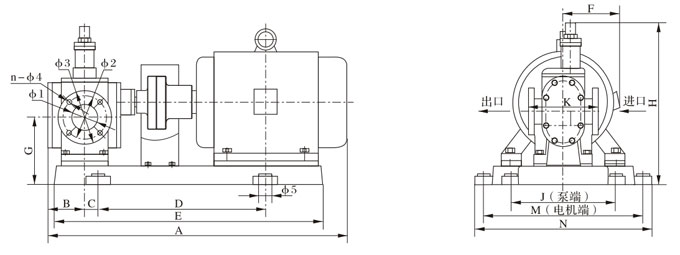
YCB不鏽鋼圓弧大香蕉一级片整機外型、安裝尺寸
YCB不鏽鋼圓弧大香蕉一级片整機外型、安裝尺寸
型號
Model
流量
m3/h
ABCDEFGHJKMNφ1φ2φ3n×φ4
YCB0.6-0.60.650650 22.5280421155115232 136 125222252 φ25 φ75 φ100 4×M10
YCB1.0-0.61.0486.5264405150217207237
YCB1.6-0.61.6 54763 27.5 303 455 155 243 156 150 222 252φ32φ90 φ120
4×φ14
YCB2.5-0.62.5
YCB3.3-0.63.3 6447635 344.5 544.5   180127.6298198180 266 298φ 40 φ100φ130
YCB5.0-0.65.0
YCB4.0-0.64.0 667.58240 346 557 256 288 φ50φ110 φ140
YCB6.0-0.66.0
YCB8.0-0.68.0 795101 50   382 644   210140396218220332364φ65φ130φ160
YCB12-0.612
YCB10-0.610849111430690
YCB15-0.615808392652
YCB20-0.6201009131.5 29.5566845  255 165.8 471.5 270 260380416φ80φ150φ1904×φ18
YCB25-0.6251100146.5603904385421 φ100 φ170 φ210
YCB30-0.630112514735646954196517295275400436
YCB40-0.640121416142.56731023285212562315300425461φ125φ200φ2408×φ18
YCB50-0.650130015952.56801080310237590240300476536φ125φ200φ2408×φ18


 相關新聞
 相關產品

泊頭市香蕉视频在线观看免费泵業製造有限公司  手機:13931762407 電話:0317-8285333 傳真:0317-8356252 聯係人:吳經理 
郵箱:chinayoubeng@163.com 地址:河北省泊頭市
網址:www.kengfafj.com Copyright 泊頭市香蕉视频在线观看免费泵業製造有限公司 all Rights Reserved .冀ICP備70358679號-1
網站地圖